Projekt

Boligudvikling

Byggeår

2023

Sted

Jyderup

Samlet byggeareal

6900 kvm

Parcelhusgrunde

19

Bygherre

EBH Byg Entreprise

Download PDF Projekt

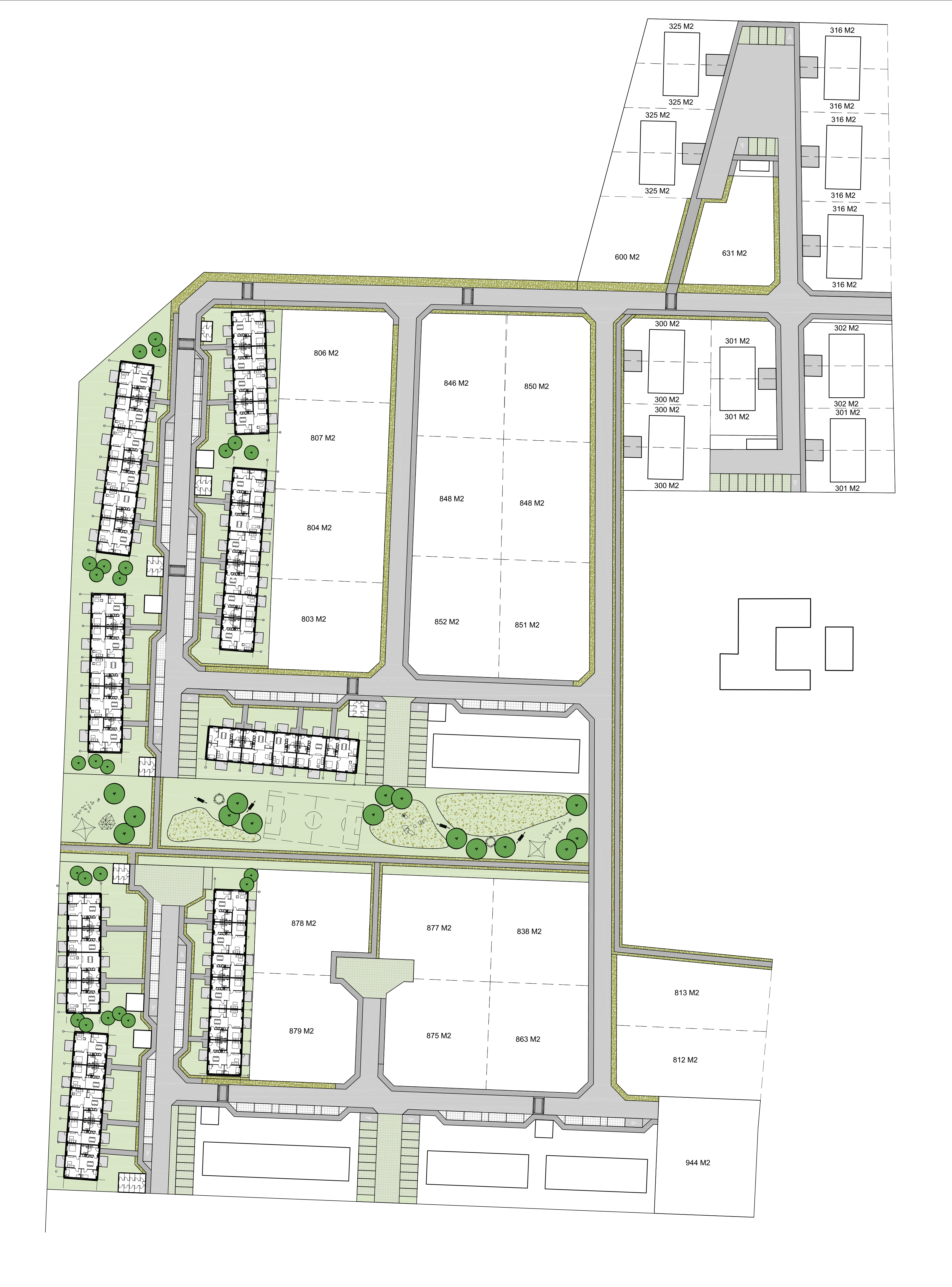
Adams Have – et grønt bykvarter for alle generationer

Tæt på Stokkebjerg Skov, på Aggersvoldvej ligger dette ny bykvarter i det nordlige Jyderup. Et boligområde med både nye børnefamilievenlige parcelhuse, bofællesskabsboliger til både seniorer, singler og familier og ældreboliger.

Bydelen rummer i alt ca. 95 husstande, som omfatter parcelhuse med egen stor have og et-plans rækkehuse med egen terrasse.

I bykvarteret er der fokus på livskvalitet via fællesskaber. Det folder sig ud over hækken mellem jævnaldrende børnefamilier og mellem børnene, der nemt finder legekammerater hos naboen.

Men her er også et helt særligt fællesskab på tværs af generationerne. For bykvarteret rummer både boliger til de aktive seniorer, der gerne indgår aktivt i børne- og havepasningen i parcelhuset hos de voksne børn og børnebørn og også boliger til de endnu ældre, der nyder godt af at bo i ældrebolig tæt på de voksne børn/ børnebørn og oldebørn, som nemt kan stikke hovedet forbi – og måske lige give et nap med, så hverdagen kan fungere på egen hånd.

Bykvarteret er grønt og der arbejdes aktivt for at skabe plads til mere biodiversitet i bydelen. I de almene boliger driftes f.eks. udearealer uden brug af sprøjtemidler, der er gjort plads til at mursejlere kan bygge rede og der følge frø til musevikke, merian og almindelig knopurt med i indflytningspakken, så sommerfugle også kan finde føde.

Fællesskabet på tværs af generationerne understøttes fysisk af gode muligheder for spontant eller planlagt at mødes – måske i orangeriet ved seniorbofællesskabet, hvor der både er mulighed for at dyrke krydderurter og mødes til en kop kaffe eller på bænken med udsigten mod Stokkebjerg skov, på havegangen eller på legepladsen lige ved den nye bydel.

Bydelen er et mix af private ejerboliger og almene lejeboliger og tænkes fra starten som en samlet helhed, med gode udearealer og grønne cykelstiforbindelser til Jyderup – en bydel med plads til både privatliv og fællesskab.

Fakta for Stokkebjergs nye bykvarter:

19 Parcelhusgrunde udstykkes til privat salg

20 private rækkehuse

20 almene boliger organiseret som et bofællesskab. Her er både plads til de aktive seniorer, men også til yngre, der ønsker det tættere fællesskab

20 almene ældreboliger til bydels ældste beboere, boligerne opføres med mulighed for både par og enlige og giver muligheden for at ældre kan forblive i eget hjem i længere tid.

Etape 2: Med mulighed for 20 almene boliger

Arkitektur

De almene boliger opføres som muret byggeri med spil i murværk og saddeltag. Der er tale om gode, gedigne, velkendte løsninger, der med lang holdbarhed og lavt driftbehov skaber betalbare boliger opført så de lever op til de nye krav til reduceret CO2 aftryk.