Oprettet i 2022
+45 21 31 18 58
info@adamshave.dk
Velkommen
Kontakt os
Toggle navigation
Projekter
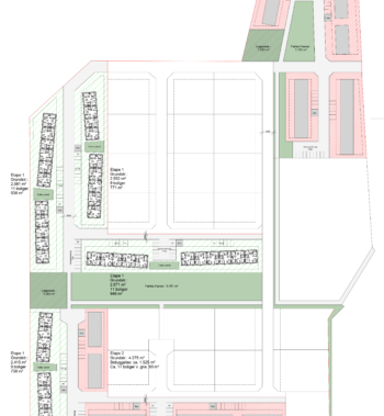
Ugerløse SYD VEST
Boligudvikling
Se mere
Tuse Bytorv
Borgerprojekt - ny dagligvarebutik og bytorv
Se mere
Adams Have i Jyderup
Boligudvikling
Se mere